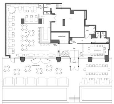
Design of an upscale Turkish restaurant in New York's Upper East Side. Incorporating elements of oriental culture, the main design feature is laser-cut bronze screens.
As project designer at DHD






angela liarikos architecture + design
copyright © 2020 angela liarikos – all rights reserved